Fujivista Domestic Lifts Mrl Home Elevator Small Villa Lift with Spacious Panoramic Design and Decorative LED Lighting

Customization: Available
Driving Type: AC Elevator
Capacity: 500-1000kg

Product Description

i

Basic Information

Model NO.JH-RX3
Persons6 - 10
Speed1.00 - 2.00m/s
Control ModeCollective Selective Control
Position of Computer Roomup
Elevator DoorCenter Opening Door
Deceleration DeviceWith Deceleration Device
BufferHydraulic Buffer
ApplicationHotel, Apartment, Office Building
Traction MachineGearless Traction Machine
MaterialMirror Etching Panel
Control SystemMonarch Vvvf Controller
📦

Packaging & Delivery

Package Size589.00cm * 233.00cm * 231.00cm
Gross Weight1560.000kg
Transport PackageWooden Case, Pallet, PE-Film

Product Description

Passenger Elevators: Designed for high-rise buildings, offering smooth, quiet rides, energy efficiency, and customizable cabins to meet diverse architectural needs.

Observation home elevator design 1

Observation home elevator

Observation home elevator design 2

Observation home elevator

Observation home elevator design 3

Observation home elevator

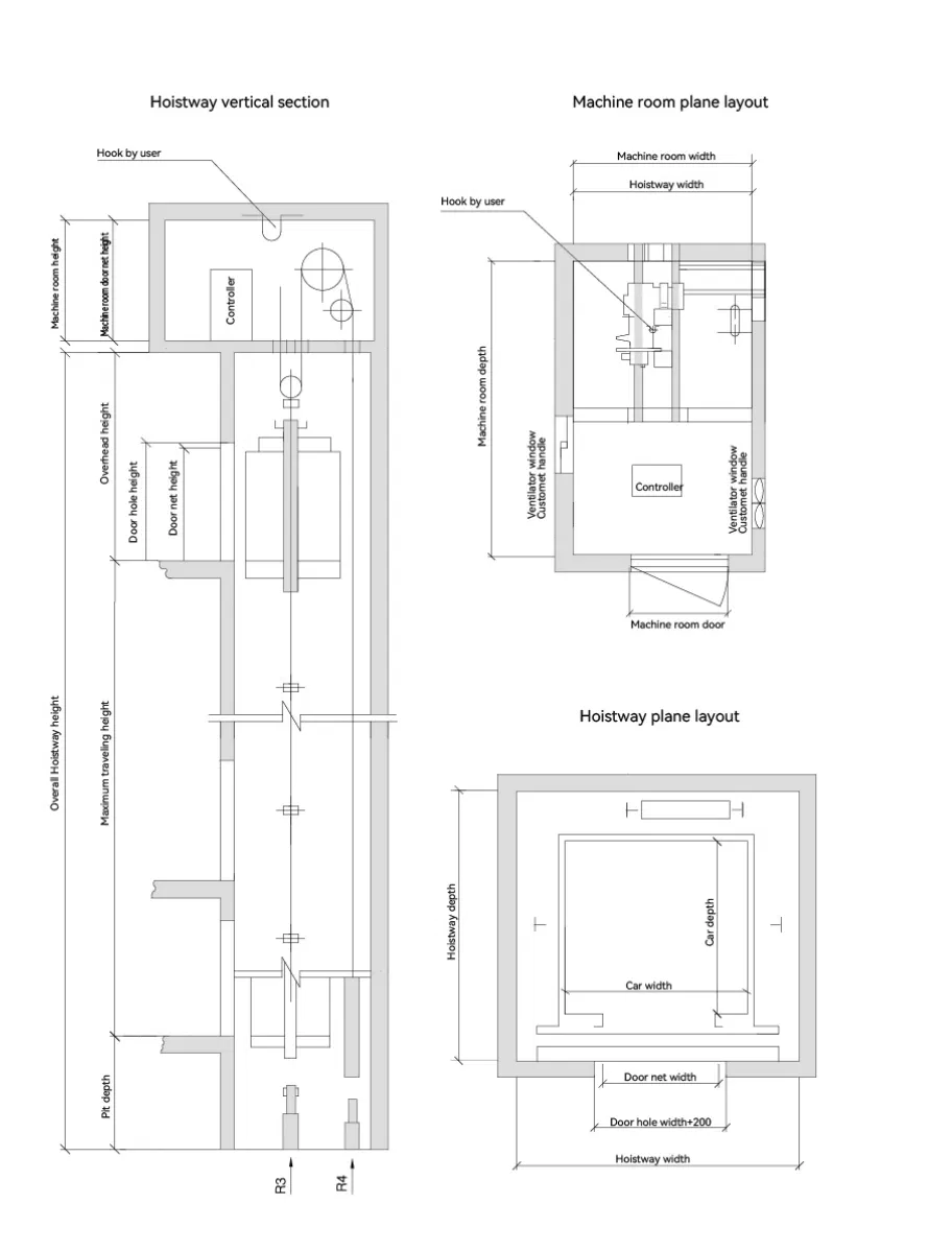
Small machine room passenger elevator sketch:

Approved drawings guide installation, meeting elevator standards.
Ensure >50mm step and proper width for machine room to well holes.
Step between decor and door sill to prevent water entry post-installation.
Watering objects must meet graphic standards during installation.
Create buffer base under installer guidance.
Elevator installation sketch
Load(kg) Speed (m/s) Hoistway Size (XxY) Car Dimension (A×B) Door Opening Overhead Height Pit Depth
630 1.0 2000×1800 1400×1100 800mm 4500 1500
1.5 4600 1600
1.75 4700 1700
2.0 4900 2000

Note: Only for reference, final manufacture please follow contract.

🛠

After Sales Service

Standard Warranty: 12 months post-assembly (excludes transportation fees).

Global Support: 24/7 technical assistance and spare parts availability.

Training: On-site or remote operation and maintenance training.

🏢

Professional Manufacturer

Factory Profile

Leading Chinese elevator maker with ISO 9001 and CE certification. Exporting to 10+ countries with advanced R&D and quality-backed products.

Why Choose Us 1
Why Choose Us 2

Why Choose Us?

  • OEM/ODM capabilities
  • Competitive pricing & bulk discounts
  • Fast shipping & customs clearance
  • Turnkey project solutions

Other Products:

  • Home elevators
  • Freight elevators
  • Sightseeing elevators
  • Custom lift solutions
?

Frequently Asked Questions

Q: How to handle installation post-purchase?
A: Detailed manuals and technical drawings are provided. You can hire local installation teams, and our engineers offer remote guidance throughout the process.
Q: How is damage risk during sea freight managed?
A: We use reinforced wooden crates and anti-rust packaging. Full insurance is provided under CIF terms to protect your investment.
Q: What is the timeline for a customized elevator?
A: 1. Design: Submit hoist-way details for a proposal in 3 days. 2. Production: Begins post-deposit. 3. Delivery: Typically ships within 15 days after balance payment.
Q: What are the accepted payment terms?
A: We offer flexible terms: 30% deposit to start production and 70% balance due post-production but before shipment, mainly via T/T.
Q: What additional costs should be considered?
A: Our CIF quotes include product cost, export packaging, freight, and insurance. Buyers should consider local import duties, customs fees, and local installation labor.
Q: Is global technical support available?
A: Yes, we provide 24/7 remote technical support and maintain a steady supply of spare parts for all our global clients.

Related Products